| Sign In | Join Free | My enlightcorp.com |
|
Brand Name : TMTeck
Model Number : DAC
Place of Origin : China
MOQ : 1 pc
Price : Negotiation
Payment Terms : T/T, Western Union,
Supply Ability : 20 pieces in two week
Delivery Time : 5-8 working days
Packaging Details : Carton
Type : NDT Accessories
Material : 1018 Steel, Stainless Steel, Aluminum
High Light : Ndt Ultrasonic Test Block
DAC Block
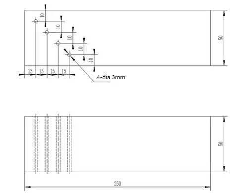
The drawing:


Production Line
We guarantee to provide you first-class quality products with original factory production and packaging. We strictly comply with the requirements of professional standards, the whole processes are managed and monitored with standardization to ensure the high quality of products.
Any questions about the quality, we can provide you with product source certificate, for special requirements of customers, we can conduct a comprehensive laboratory tests.
Cooperate with quality and technical supervision authority institution, we use the most advanced and efficient testing instruments, all products have passed through rigorous testing procedures to ensure product stability and compatibility. We have scientific and rigorous quality control test procedures, in accordance with all relevant national and international industry standards.
|
|
NDT DAC Calibration Test Block For Ultrasonic Flaw Images |